- Accueil
- Vente
- Alpes maritimes
- Mouans sartoux
- LE LUXE D'UN GRAND JARDIN EN DUPLEX - MOUANS-SARTOUX - T4 - 83m² habitable + 633 m² de jardin
Référence : VDU110000725
Calculette
Partager
LE LUXE D'UN GRAND JARDIN EN DUPLEX - MOUANS-SARTOUX - T4 - 83m² habitable + 633 m² de jardin
Description de l'offre
LE LUXE D'UN GRAND JARDIN EN DUPLEX.
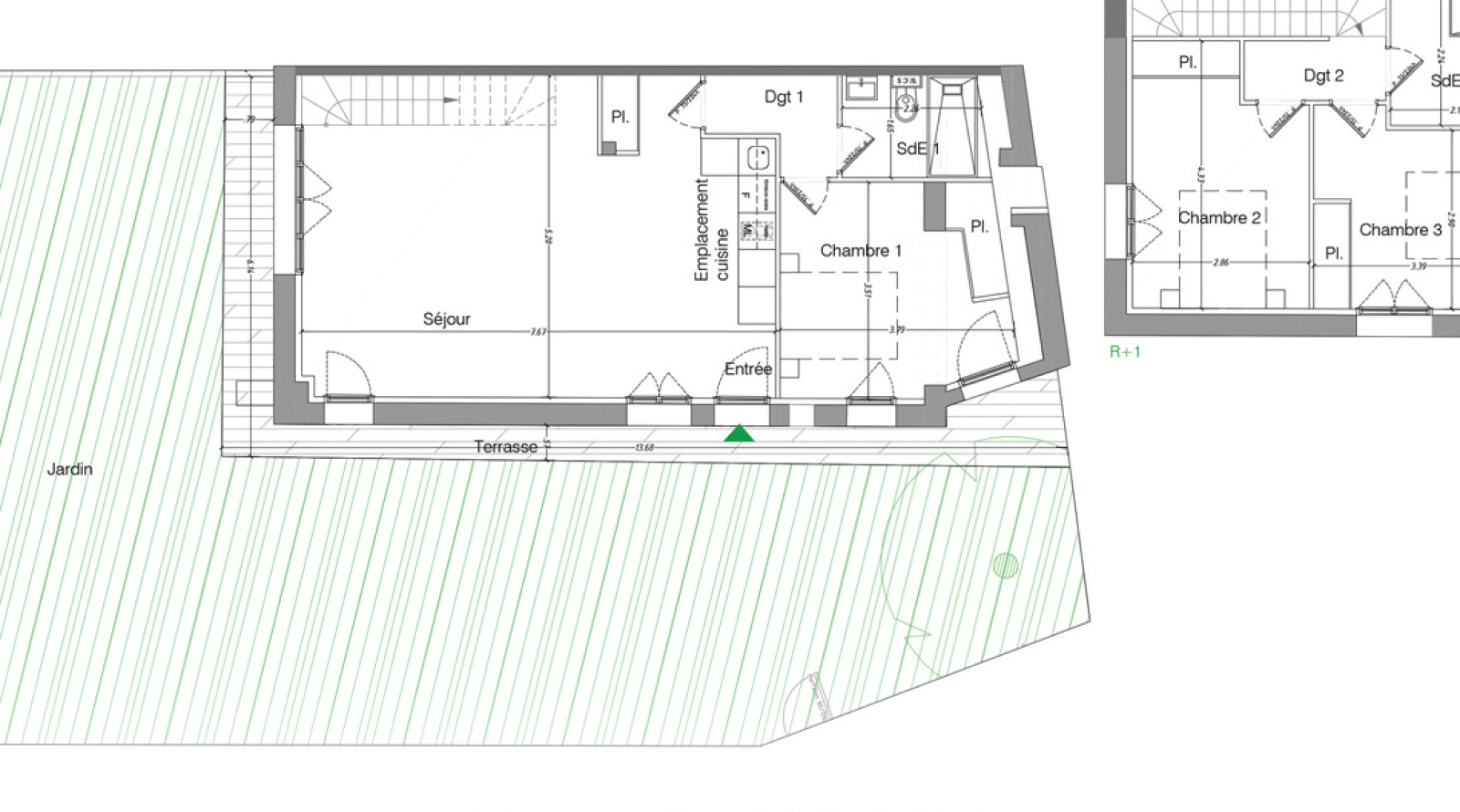
Vivez l'expérience unique d'un appartement-villa. Ce Duplex T4 offre 83 m² habitables, avec un séjour/cuisine, une chambre, une salle d'eau et WC au rez-de-chaussée, et deux chambres et une salle d'eau à l'étage.
Son extérieur exceptionnel de plus de 633 m² crée un havre de paix absolu, idéal pour une famille. Une perle rare qui conjugue espace, calme et l'authenticité d'un mas rénové. (Parking privatif inclus)
Séjour, cuisine, chambre, salle de douche et WC de plain-pied, attenants à un exceptionnel extérieur.
A l'étage 2 chambres et une salle de douche.
Cadre verdoyant, secteur très prisé avec une majorité de villas aux alentours.
Une copropriété intimiste de 12 lots, issue de la rénovation complète d'un ancien mas en pierre.
Chaque appartement offre un cadre de vie exceptionnel, alliant le calme d'un secteur prisé et verdoyant à des prestations de qualité
Ce bien sera livré début 2026.
Le prix de vente comprend : carrelage, douche à l'italienne, WC suspendu.
Calme absolu. Tout-à-l'égout. 1 parking privatifs exterieurs.
Réseau éléctrique installé pour bornes de recharge.
D.P.E Vierge (En cours de rénovation) / Foncier inconnu / Estimatif charge de copro en cour de calcul.
Descriptif du bien
- Code postal : 06370
- Surface habitable (m²) : 83,30 m²
- Surface loi Carrez (m²) : 83 m²
- Nombre de chambre(s) : 3
- Nombre de pièces : 4
- Nombre de niveaux : 2
- Ascenseur : NON
- Nb de salle d'eau : 2
- Cuisine : AMERICAINE
- Mode de chauffage : Electrique
- Type de chauffage : Radiateur
- Format de chauffage : Individuel
- Terrasse : OUI
- Cave : NON
- Nombre de parking : 1
- Copropriété : NON
- Prix de vente honoraires TTC inclus : 579 000 €
La ville de Mouans-Sartoux (06370)
Ce bien vous intéresse ?
Partager l'offre
GIORDANO PLEIN SUD IMMO
Valbonne (06560)
Les informations recueillies sur ce formulaire sont enregistrées dans un fichier informatisé par La Boite Immo agissant comme Sous-traitant du traitement pour la gestion de la clientèle/prospects de l'Agence / du Réseau qui reste Responsable du Traitement de vos Données personnelles.
La base légale du traitement repose sur l'intérêt légitime de l'Agence / du Réseau.
Elles sont conservées jusqu'à demande de suppression et sont destinées à l'Agence / au Réseau.
Conformément à la loi « informatique et libertés », vous disposez des droits d’accès, de rectification, d’effacement, d’opposition, de limitation et de portabilité de vos données. Vous pouvez retirer votre consentement à tout moment en contactant directement l’Agence / Le Réseau.
Consultez le site https://cnil.fr/fr pour plus d’informations sur vos droits.
Si vous estimez, après avoir contacté l'Agence / le Réseau, que vos droits « Informatique et Libertés » ne sont pas respectés, vous pouvez adresser une réclamation à la CNIL.
Nous vous informons de l’existence de la liste d'opposition au démarchage téléphonique « Bloctel », sur laquelle vous pouvez vous inscrire ici : https://www.bloctel.gouv.fr
Dans le cadre de la protection des Données personnelles, nous vous invitons à ne pas inscrire de Données sensibles dans le champ de saisie libre.
Ce site est protégé par reCAPTCHA, les Politiques de Confidentialité et les Conditions d'Utilisation de Google s'appliquent.
