- Accueil
- Vente
- Alpes maritimes
- Grasse
- COUP DE COEUR : Villa de maçon + piscine
Référence : VMA110000846
Calculette
Partager
COUP DE COEUR : Villa de maçon + piscine
Description de l'offre
CO-EXCLU - Photo embellie par IA — n’hésitez pas à demander les originales.
Villa de maçon édifiée entre 2007 et 2014 sur une parcelle de 1 552 m², idéalement située à proximité de Briconaute, Leclerc etc...
Exposition dominante Sud-Est, nombreuses ouvertures, aucun vis-à-vis et aucun travaux à prévoir.
De beaux matériaux nobles ont été utilisés pour la conception de cette magnifique villa.
Cette maison est édifiée sur 3 niveaux comprenant :
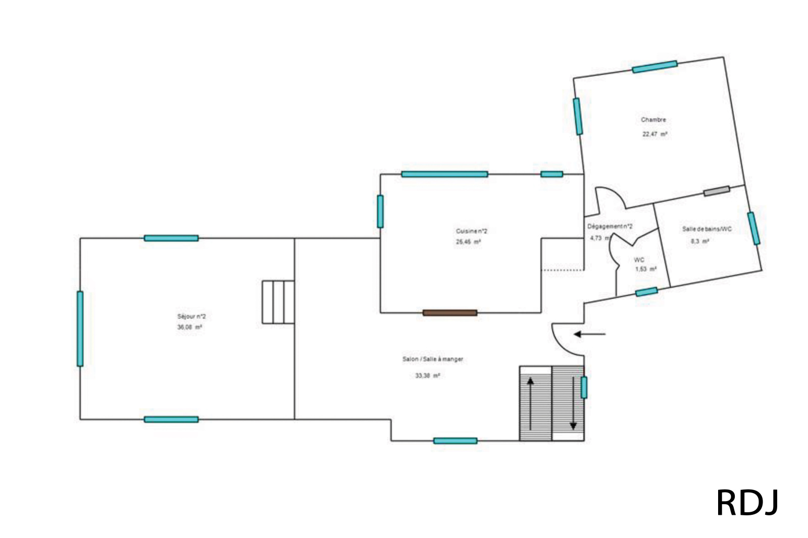
- Au 1 er niveau : garage et sous-sol aménagée en appartement de 3 pièces composé de salle à manger, cuisine ouverte, 2 chambres, salle d'eau avec water-closet
- Au 2ème niveau : cuisine, salle à manger, salon, une chambre parentale avec salle de bains, water-closet invités.
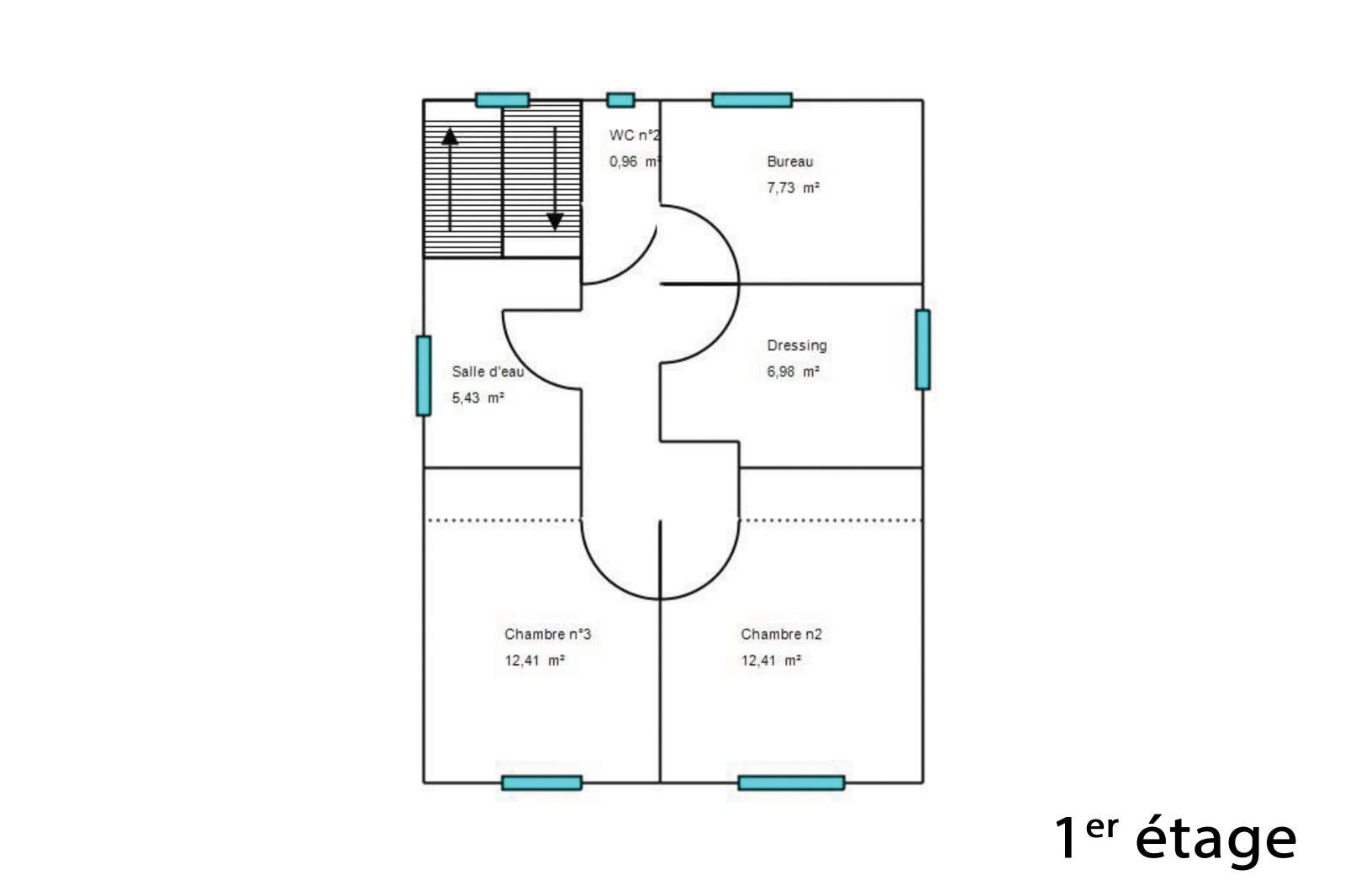
- Au 3ème niveau : 3 chambres, bureau, une salle de bains et water closet
Quelques surfaces :
- Surface Carrez : 254 m²
- Surface plancher : 320 m²
- Pièce de vie : environ 80 m²
- Garage : 54 m²
Quelques prestations :
- Cheminée double foyer
- Climatisation gainable réversible
- Menuiseries à galandage
- Domotique pour les volets roulants
- Fibre installée dans la maison
- Tout-à-l’égout
- Terrain entièrement cloturé
- Chambre de plain pied
Descriptif du bien
- Code postal : 06130
- Surface habitable (m²) : 255 m²
- surface terrain : 1 552 m²
- Surface loi Carrez (m²) : 254 m²
- Nombre de chambre(s) : 5
- Nombre de pièces : 6
- Nombre de niveaux : 3
- Nb de salle de bains : 1
- Nb de salle d'eau : 2
- Cuisine : SEPAREE
- Type de cuisine : EQUIPEE
- Mode de chauffage : Climatisation
- Type de chauffage : Air pulsé
- Format de chauffage : Individuel
- Terrasse : OUI
- Nombre de garage : 1
- Nombre de parking : 5
- Exposition : SUD-EST
- Année de construction : 2007
- Terrain arboré : OUI
- Copropriété : NON
- Prix de vente honoraires TTC inclus : 849 000 €
Montant estimé des dépenses annuelles d'énergie pour un usage standard est compris entre 2 213 € et 2 995 € . Prix moyens des énergies indexés sur les années 2021, 2022 et 2023 (abonnements compris).
La ville de Grasse (06130)
Ce bien vous intéresse ?
Partager l'offre
GIORDANO PLEIN SUD IMMO
Valbonne (06560)
Les informations recueillies sur ce formulaire sont enregistrées dans un fichier informatisé par La Boite Immo agissant comme Sous-traitant du traitement pour la gestion de la clientèle/prospects de l'Agence / du Réseau qui reste Responsable du Traitement de vos Données personnelles.
La base légale du traitement repose sur l'intérêt légitime de l'Agence / du Réseau.
Elles sont conservées jusqu'à demande de suppression et sont destinées à l'Agence / au Réseau.
Conformément à la loi « informatique et libertés », vous disposez des droits d’accès, de rectification, d’effacement, d’opposition, de limitation et de portabilité de vos données. Vous pouvez retirer votre consentement à tout moment en contactant directement l’Agence / Le Réseau.
Consultez le site https://cnil.fr/fr pour plus d’informations sur vos droits.
Si vous estimez, après avoir contacté l'Agence / le Réseau, que vos droits « Informatique et Libertés » ne sont pas respectés, vous pouvez adresser une réclamation à la CNIL.
Nous vous informons de l’existence de la liste d'opposition au démarchage téléphonique « Bloctel », sur laquelle vous pouvez vous inscrire ici : https://www.bloctel.gouv.fr
Dans le cadre de la protection des Données personnelles, nous vous invitons à ne pas inscrire de Données sensibles dans le champ de saisie libre.
Ce site est protégé par reCAPTCHA, les Politiques de Confidentialité et les Conditions d'Utilisation de Google s'appliquent.
